Startseite
Hinweise & Lieferbedingungen
Kontakt
Datenschutz
Impressum
Seilrollen
Treibscheiben
Zubehör
Treibscheibenkränze
Anfrage
Unternehmen
Treibscheiben-Zubehör
Anfrage/Bestell-Formular im PDF-Format:
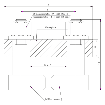
Maßblatt Treibscheibenklemme